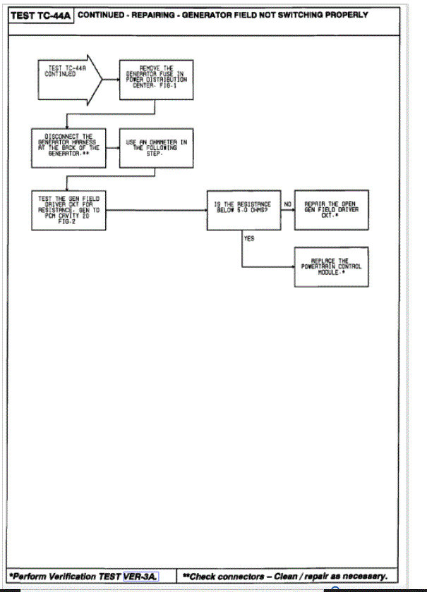
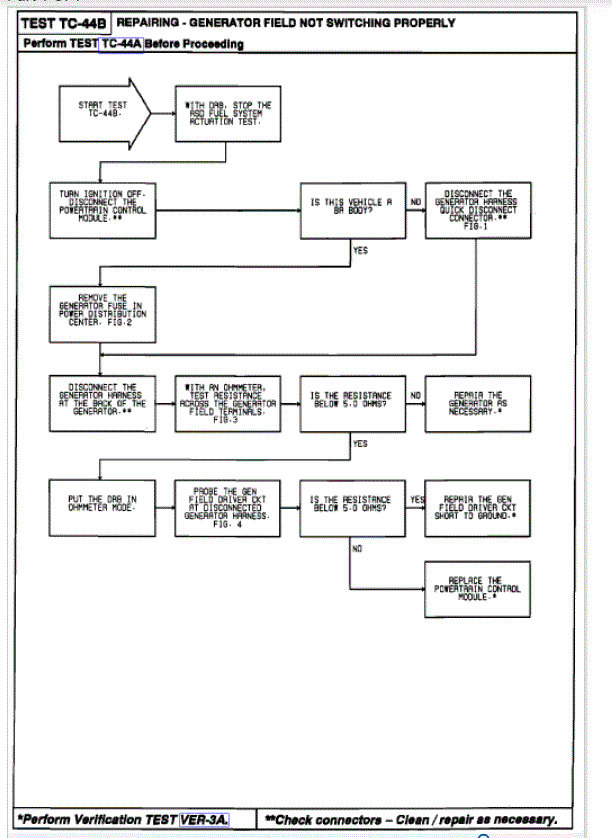
I dug deeper into the code and found there are three different codes 44, 44A and 44B. Two of them seem relevant because there is one specific to natural gas vehicles.
If you look at the first four pics below, they are the diagnostics for 44A. The remaining pics are specific to 44B.
Take a look through them and let me know if you are comfortable performing them. Also, start with 44A first then proceed to 44B if needed.
Take care,
Joe
See pics below.
Was this helpful?
Yes
No
Sunday, May 22nd, 2022 AT 8:10 PM









