Wednesday, September 7th, 2022 AT 1:31 PM
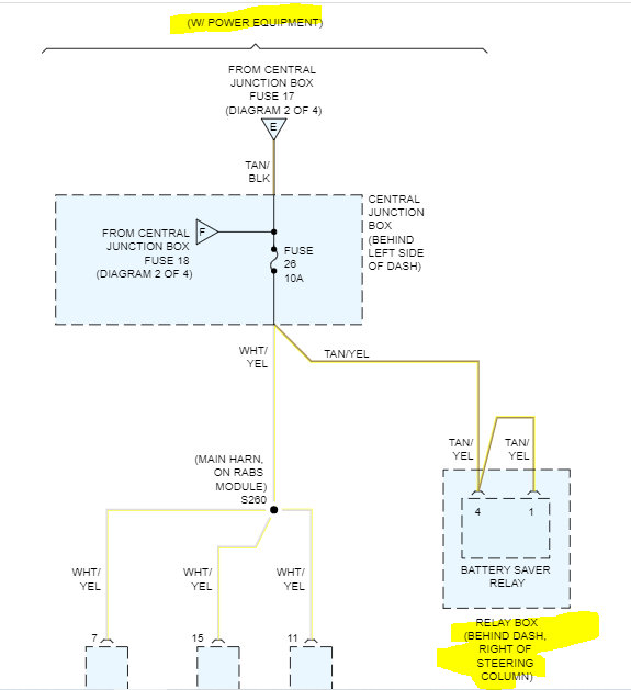
After replacing the battery, fuses started blowing. I gave a new gem ordered but I need to make sure the battery saver relay isn't bad first. Located what I thought was it behind steering wheel, but need specifics to make sure I have the correct relay before ordering a replacement.




