The silver one was my champ, never gave me any problems until my ex power washed my motor one day. Three days later I was going about 30 MPH about two miles from my house, I turned off my A/C and suddenly the car shut off, the Neutral light was blinking but it was in drive of course, and it slowed to a stop. Tried to start her and no. I have replaced the fuel pump, relays and fuses, spark plugs and wires, timing belt and water pump, gaskets, camshaft sensor and crankshaft sensor and probably more that I'm just not thinking of right now. Still she cranks but wont start!
The black one I bought about 3 months ago for $300.00 from some dumb kid who was given the car and power washed the motor one day and she quit soon after. She cranks but mostly in neutral. Doesn't sound like she tries as hard if she's in park.
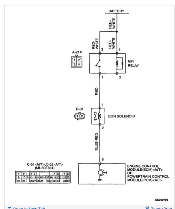
They both throw one code: p0403
I've replaced them though and made no difference?
Wednesday, June 30th, 2021 AT 8:27 PM












