Thursday, October 22nd, 2009 AT 7:19 PM
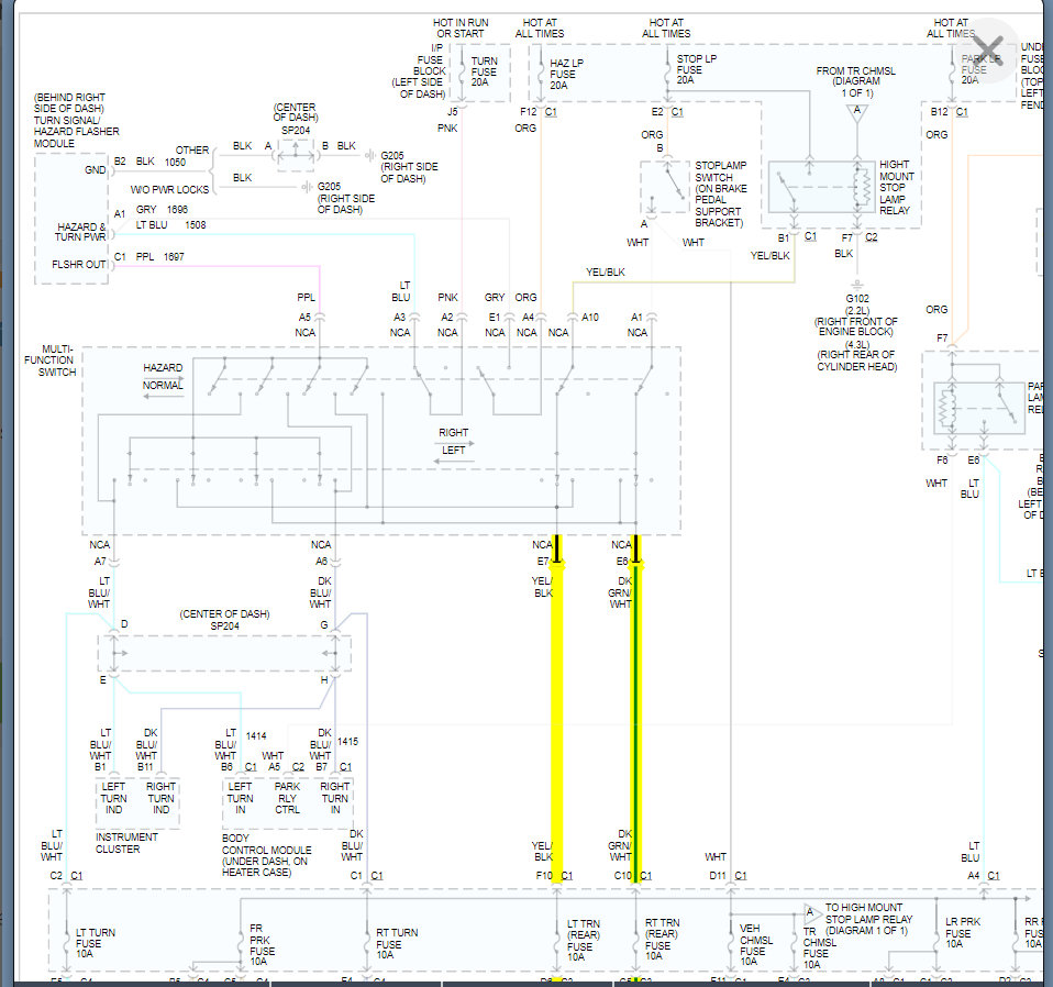
My problem is that my rear two brake lights stick sometimes after pressing the brake petal but even when they might stick I have to tap the pedal several times and they go off. However the 3rd brake light on top of the truck never sticks and works every time. I have replaced the CHMSL relay, replaced the braking ground wire, turn/signal hazard flasher, turn signal/hazard switch on the steering column, stop light switch on the top of the brake pedal(which is not adjustable, just slides on with a metal clip to go over it), and the turn signal fuse, hazard fuse inside the fuse panel of the truck and my rear brake lights still stick. The weird thing is that when they stick if I turn on the left turn signal the right one is stuck on still but the left light blinks, turn the right blinker on and the left light stays on and the right light blinks. Turn off turn signals and they are stuck on until I tap the brakes until they go off. I say thank you to anyone who views this question and a special thanks for any one with a solution








