Thursday, August 24th, 2023 AT 7:15 AM
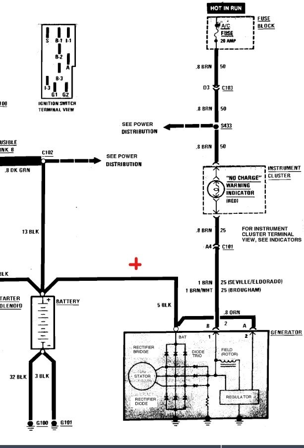
I have the car listed above which needed a new alternator. I pulled the old one and installed the new one. On the old alternator it has a two spade/wire clip that pushes on and a red threaded stud and nut with two wires on it one of which runs directly from the pigtail of the clip mentioned above and the other runs to the battery positive terminal. The new alternator is exactly the same as the original. The only difference is the red threaded stud on the new one is black. I got the alternator installed and hooked up the wires in the exact orientation they came off of the original and fired up the car. The alternator is not charging. None of the wires associated with the alternator are original. So, my question is where are these wires supposed to come from?



