Thursday, July 28th, 2016 AT 6:45 AM
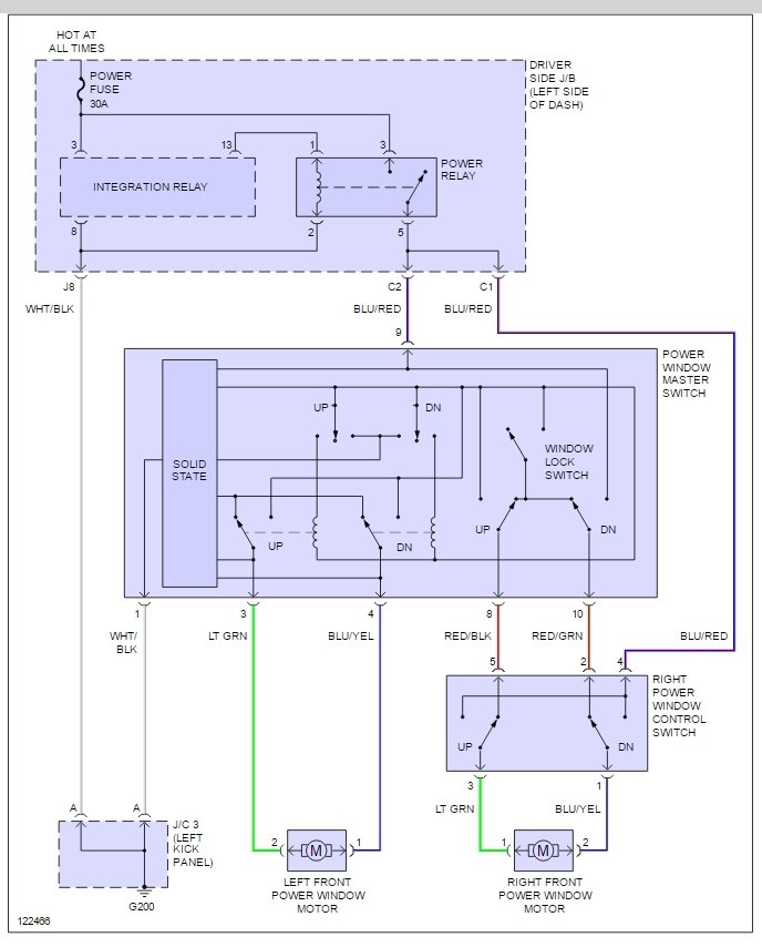
My passenger side power window quit working. I replaced the motor with a new one and I replaced the switch with a new one and still nothing happened. I tested the wires with a light up circuit tester. The switch is getting power from the battery and the wires that supply power for up and down have power also. The new motor is getting power from the switch to the motor. I have no idea what could be wrong.


