The truck listed above is a 2WD step-side with a tilt steering column.
The headlight switch needs to be replaced. When turning on, you have to turn back just a tough to get headlights to come on. The auto on and off works just fine.
The frame is in excellent condition. That is the reason I bought the truck. The previous owner told me of the issue. Said issue would go months and not happen. Then maybe act up for a few days. Then wait months before it happens again.
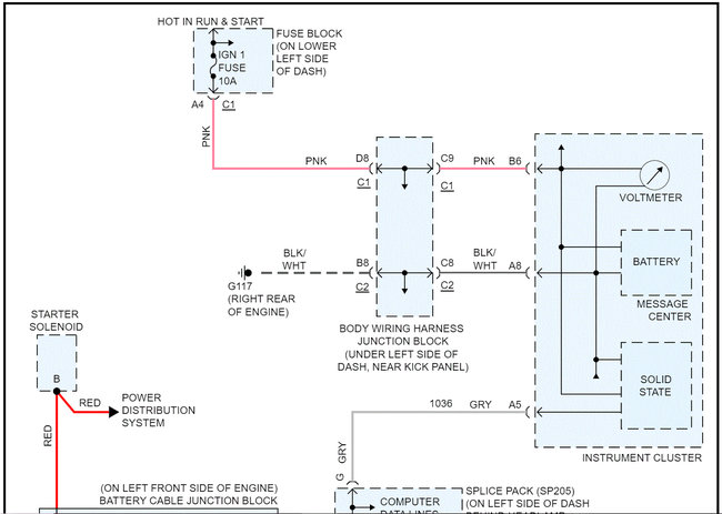
It has an intermittent issue with gauges not working. The fuel, temperature, oil pressure, and tachometer will bounce or completely stop working.
Haven't been driving when this happens. So don't know if the speedometer is affected. The check engine light is on, but I haven't had a chance to have codes read. Waiting until I get it transferred in my name before driving. Just moving around in driveway to mow and move my boat around.
The message center shows not charging but voltmeter shows charging.
I'm thinking it is a ground issue but don't know where to look or the ground points.
FWIW. I have a 2000 Blazer with a 4.3L with a bad frame that I can take parts off of if needed. That is how I plan to repair the headlight switch.
Sunday, April 24th, 2022 AT 9:15 AM



