The last drive was a short drive to the store. On the was back I ran over a railroad track
that was bumpy as heck. Soon after rolling over this bumpy bumpy ride (I did not slow down much) thought I could roll right over.
After rolling over the tracks I lost power, tapped on the gas but no go, I could only go about five to seven miles per hour, slow for about one block until I got to my house. That is when I cut the engine.
I noticed that the "check advancetrac" symbol came on solid after I went over the train tracks.
Now it just will no say any thing when I attempt to turn the key to turn it on.
Things i have verified:
The Battery: all lights come on, the horn honks, the lights in the cab do not go dim with attempting to start.
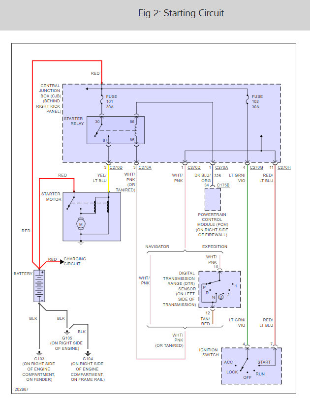
The starter: I ran a wire from the starter solenoid(thin wire) to the positive of the battery it started with low idle but with no thrusting power. I put it in gear and it goes very slow forward and backward.
I thought it may be the collision airbag sensor. I read somewhere that it might be in collision mode. I do no know, I am reaching.
I am also reaching out to all who might know what I can do to DIY and or who might have a resolution, solution, and just plain old fix.
Video:
https://drive.google.com/open?id=1MnZ0uKQi-CtuOAsBGS90veiATrUjSE2s
Tuesday, June 12th, 2018 AT 4:30 PM










