Monday, April 27th, 2020 AT 9:52 PM
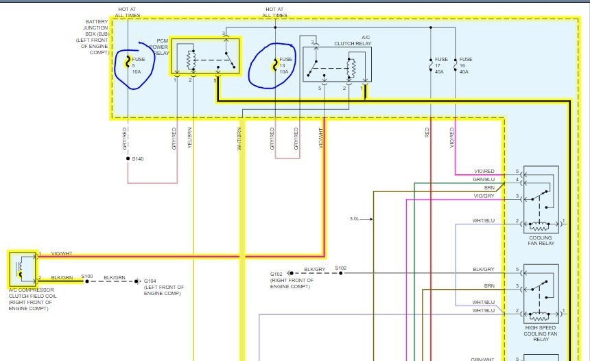
Where is the A/C low pressure sensor/switch located, and can it be replaced without opening the A/C system? I just replaced most of the major components in my A/C system, drew a vacuum, and attempted to add refrigerant, but the compressor clutch wouldn’t engage even though the low side was above 30 PSI after I added some refrigerant. Compressor/clutch are brand new and I confirmed the electrical wiring/attachment to the compressor work (tested the relay and also bypassed the relay for a few seconds just to confirm the compressor/clutch would engage - it did). So it seems some kind of sensor is preventing the PCM from allowing power to go to the compressor clutch. Wondering if it’s just a bad low pressure switch. If you have any other thoughts about what the problem could be I am all ears!


