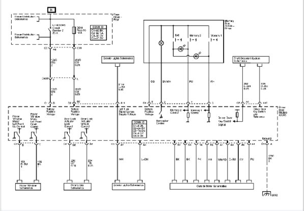
I currently own the vehicle listed above XUV, 4.2 Liter, I-6. The vehicle seems to run fine, but my issue is with the tailgate/endgame not getting power to the window as well as the door release buttons at the rear of the vehicle. Also, the rear defrost button is not working as well.I would like to assume that the problem is contained to the rear function of the vehicle (the power going to the tailgate/endgame specifically) because I don't have power to the tailgate window as well as the door, but power to everywhere else. It could be a possibility of a fuse or shorted wire, but I have no wiring diagram to isolate the tailgate. The XUV is a rare vehicle and a lot of GM dealers see it and said that they have never heard of it before. Which means I'm going to pay them to experiment like I am. Does anyone have this issue or have wiring schematics for the tailgate in particular? Your help would be greatly appreciated.
Tuesday, July 13th, 2021 AT 3:35 PM



















