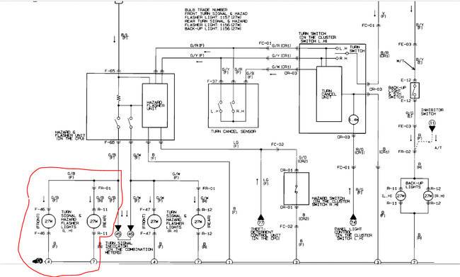
Monday, July 20th, 2020 AT 6:25 PM
I had a burned out bulb on the left front, replaced it. Nothing, the parking light part of the new bulb works, but no flash for turn signal. Fuse is fine, hazards only work on the right. Any ideas?


