Friday, September 8th, 2017 AT 11:23 PM
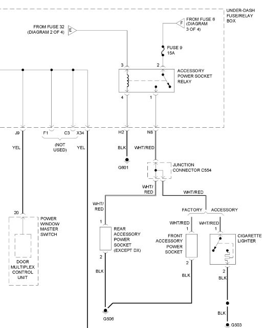
Power Accessory plugs not working in lower dash or in center console. I replaced fuse number nine, 15 amp, front accessory sockets and Fuse #32 7.5 amp, ACC. Still not working. I use my car for Uber so I need these working to power and charge my phone and GPS. Any suggestions?

