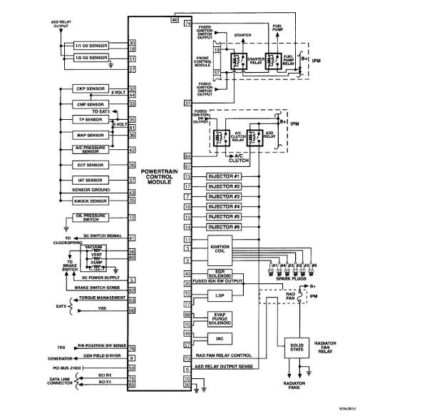
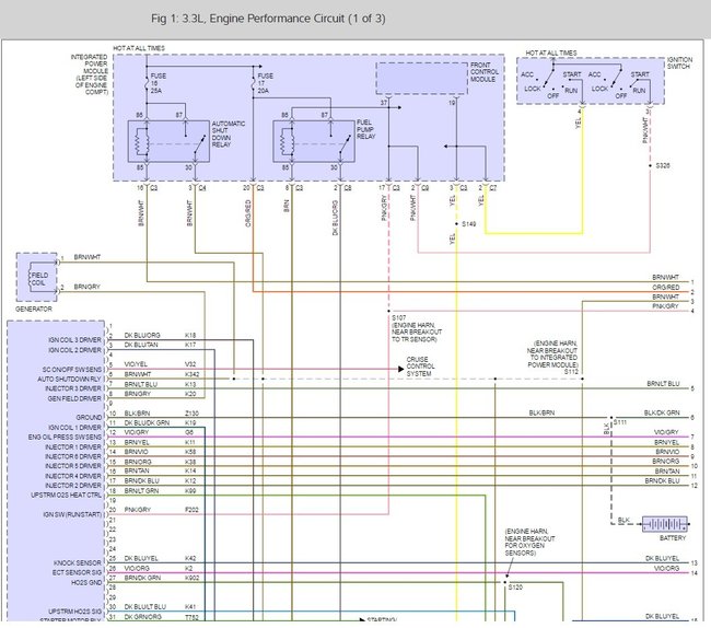
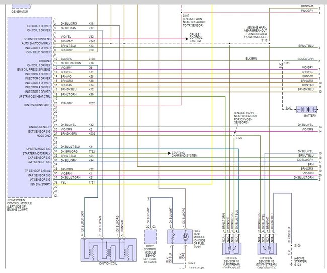
Saturday, July 25th, 2020 AT 11:11 AM
My van keeps blowing the fuse for the ECM after running for about 15 seconds. And when it is running for a longer period of time the battery drains. I have replaced bothering the battery and alternator. But I can not find the PCM location. Please help!

















