Monday, May 9th, 2022 AT 12:53 AM
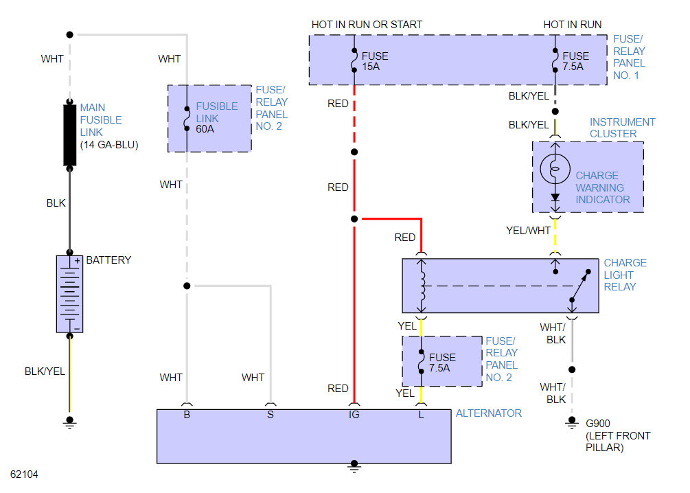
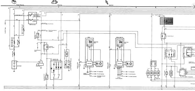
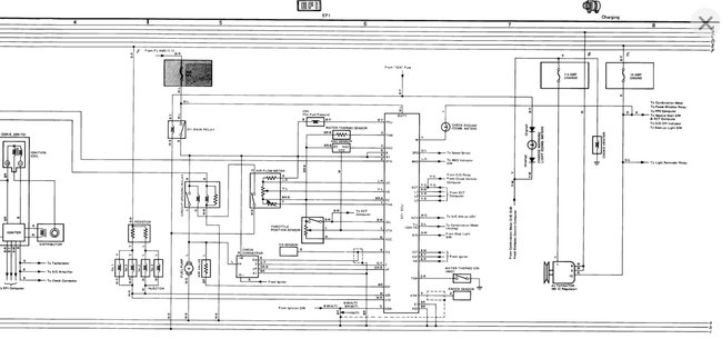
My battery slid was not held down and slid off the battery holder. I immediately turned the truck off and the ground off the battery to the body was ripped off. The truck has no power at all in the cab. Replaced the ground already. I have power the fuse panel as my head lights run off a toggle switch and are working. The key switch, lights bar on the steering column, and dash all have no power. Battery, 80A fuse, grounds, power to alt. And the starter is good. My running lights coming off the steering column should stay on even with truck being turned off and no power to the switch either. I will continue to check fuses and wires, but any advice would be helpful. Thank you.








