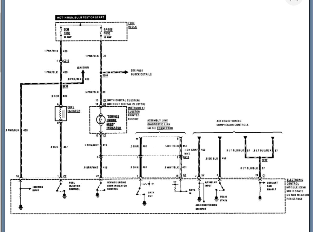
The car listed above has a 2.5 4tec. It is not getting any pulse from the injector. Also, I think the timing is off as well, but I need to get fuel problem fixed so I can fire it up and get timed. Car will run when you throw ether into there just backfire through the intake not sure if I'm having a grounding issue, I'm not getting any codes plus not sure how to time it because it doesn't have a distributor.
New parts:
ECM
Ignition control module
Crank position sensor
Coolant Temperature sensor
Air intake sensor
Map sensor
Plugs and wires
Idle control valve
Throttle position sensor
Fuel injector
Fuel pump and filter
New parts:
ECM
Ignition control module
Crank position sensor
Coolant Temperature sensor
Air intake sensor
Map sensor
Plugs and wires
Idle control valve
Throttle position sensor
Fuel injector
Fuel pump and filter
Jan 21, 2022 at 9:40 PM
