Tuesday, March 13th, 2018 AT 3:27 PM
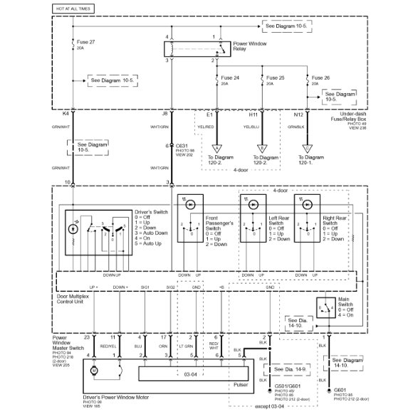
My driver side window will not roll down when I press the switch nothing happens it only goes down when it is really hot outside. Now the back door stopped working a few days ago. When I press the switch on that side it does a clicking noise but will not roll down.



