Wednesday, June 19th, 2019 AT 2:55 AM
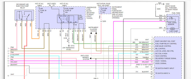
I would like to know what color in the wiring harness to tap into of my vehicle listed above VX model. As I want to add a second fuel gauge with my other gauges the fuel gauge I have is a vod.


