Sunday, February 24th, 2019 AT 8:30 PM
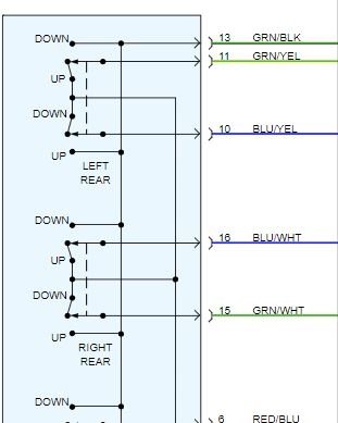
The white wire harness that attaches to the window switch broke when I removed my driver side door panel. Now I’m trying to figure out how to put the wires back were they belong.


