Friday, June 2nd, 2023 AT 6:46 PM
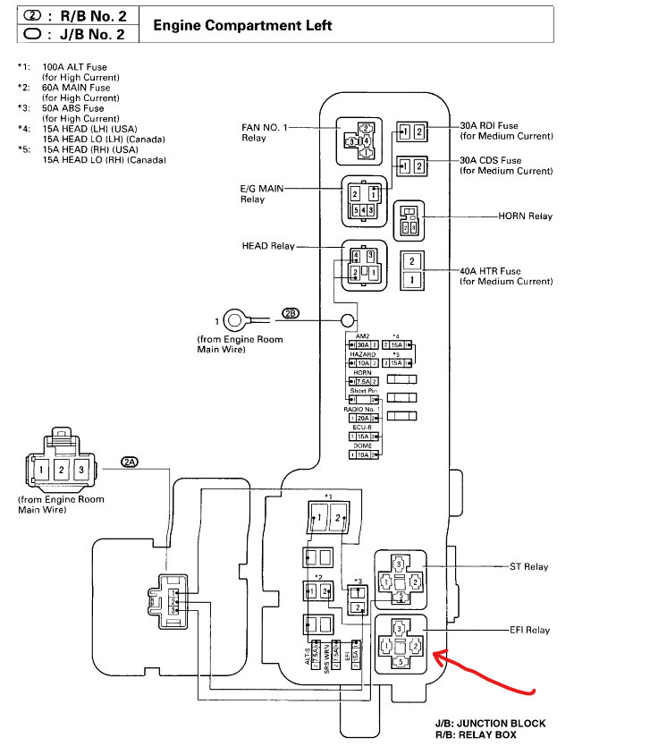
The car was working perfectly the day prior, then one day it started, and then shortly after, it shut off. It started up three times and died each time, then wouldn't start again. I'm getting good fuel pressure (roughly 40–50 measured with the fuel pressure tool from O'Reilly's). Injectors, fuel rail, fuel filter, and fuel pump are all working. I've already replaced the distributor, rotor, ignition coil, and spark plugs. Spark plugs aren't getting any spark after trying them out of the engine test while cranking. The battery is good. Crankshaft position sensor is good. I don't know how to test the camshaft position sensor.




