Thursday, October 19th, 2017 AT 3:46 PM
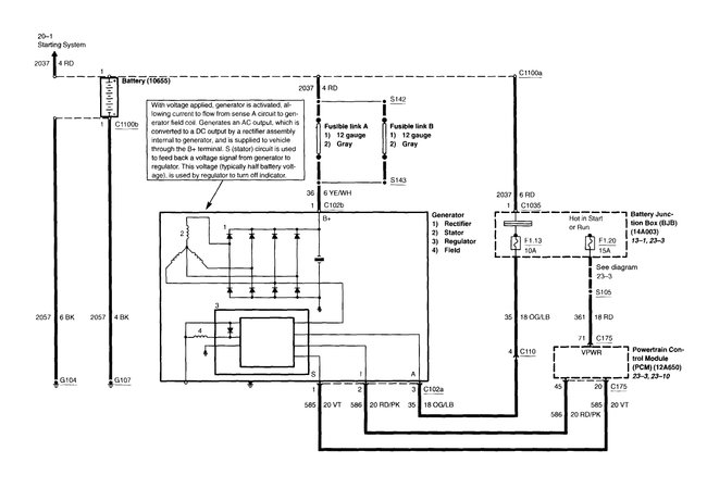
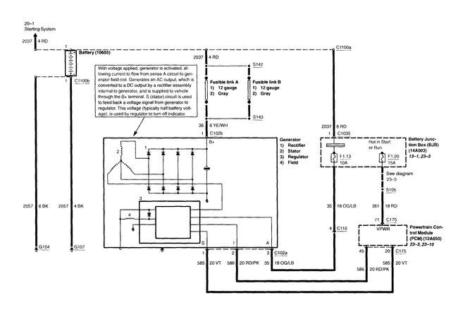
Battery light will not go off stays on all the time. Alternator checks out good. I was told it has an external diode, but cannot figure out where it is located. Can you help?


