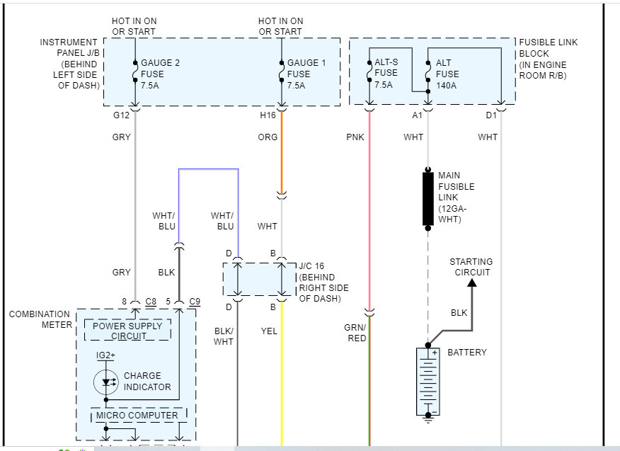
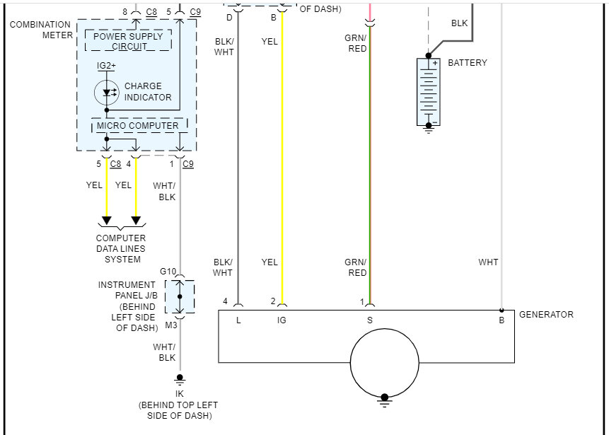
The vehicle engine was repaired, in the process the alternator connector was damaged. The connector has four pins space, only three were connected to wires. The alternator has pins.
The wires were interchanged, the alternator is no low charging the battery, but the battery indicator light is off.
Please could I get a circuit diagram for the alternator wiring?
Thursday, May 25th, 2023 AT 10:01 AM



