Saturday, July 13th, 2019 AT 11:45 AM
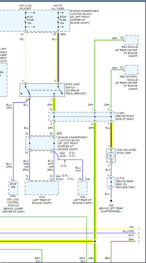
All three brake lights are not functioning. I have replaced the brake light switch and all of the fuses tested to show they are functional. I don't know what the next step should be.



