Monday, October 8th, 2018 AT 4:02 AM
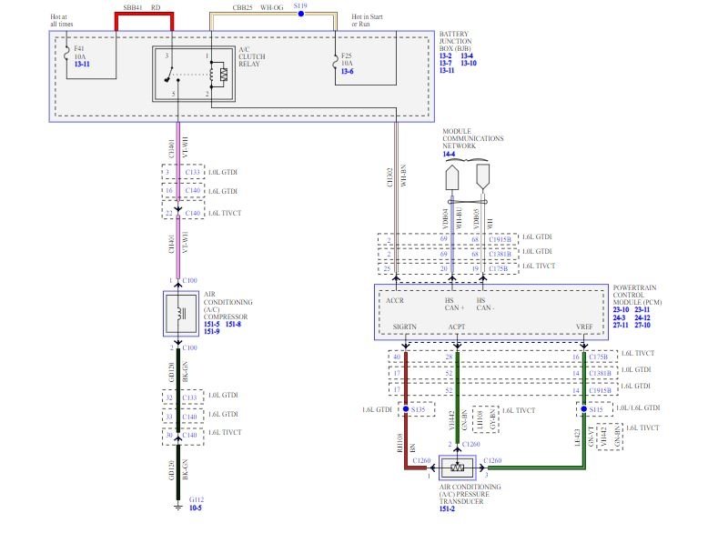
After a locksmith cut and programmed a spare key for my car the A/C compressor will not kick in. Fuse and relay are good. No power at compressor plug or at pressure switch. When jumping the relay, compressor kicks on and A/C is cold. Someone told me that the ECM could be the culprit. Locksmith said it could of not been them causing the problem. Any idea's out there?


