Thursday, April 10th, 2014 AT 2:25 PM
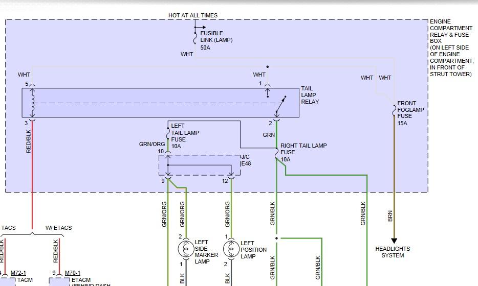
Had a blowout on freeway. Retread. So it damaged the whole rear driver side bumper tore out the left side running light now my dash lights left side tail light left side license plate light does not work. The left side brake light works reverse light works and blinkers work. The whole left side running light fixture is gone. There are just wires hanging with no power to them any solutions would be appreciated





