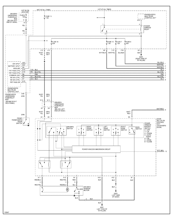
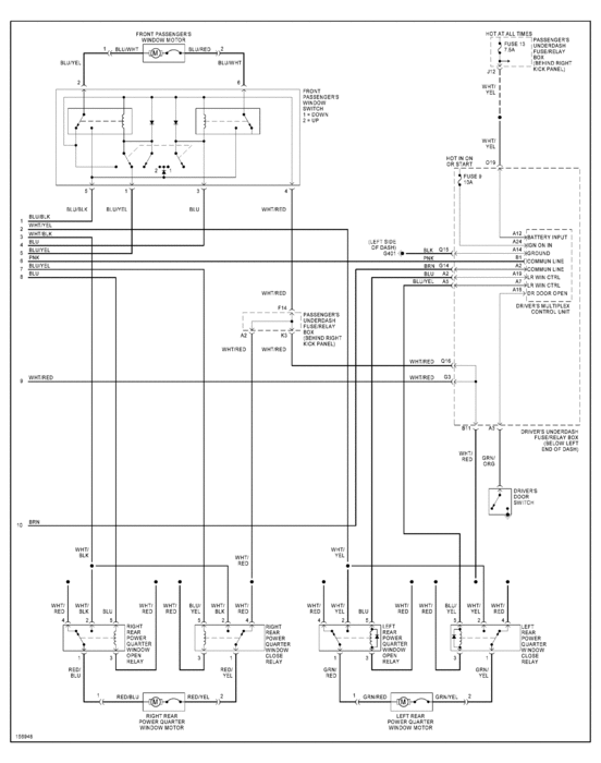
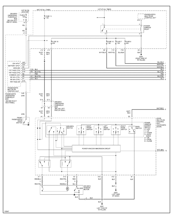
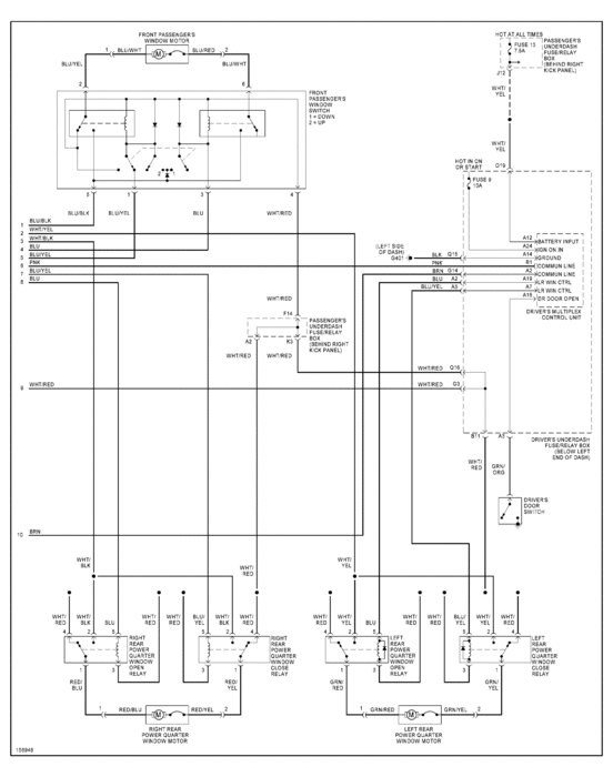
Tuesday, January 24th, 2012 AT 2:04 AM
Windows inop. Replace master switch and no the passenger window will operate only from passenger side switch. Vent windows operate interim. Put old switch back in nothing works at all. Driver window inop. Either way.




