Recall that the windshield wiper control is also on the turn signal lever. The delay feature of the wipers had also quit working, so this made me strongly suspect that the whole turn signal switch assembly was faulty. I replaced the switch assembly and was crestfallen to see no change in the turn signal situation. (Also, my wipers seem to run very, very slowly now and I'm worried that they may not be effective in a rain storm, but this is for another discussion.)
Finally, after reading your current discussion about the turn signals, I located and replaced what is supposed to be the combined hazard, turn-signal flasher relay with a new one (original part is a Tridon EP-27 flasher, located in a secondary relay panel to the right of the steering column below the dash). Unfortunately, this caused no effect on the turn signals and now I am utterly defeated.
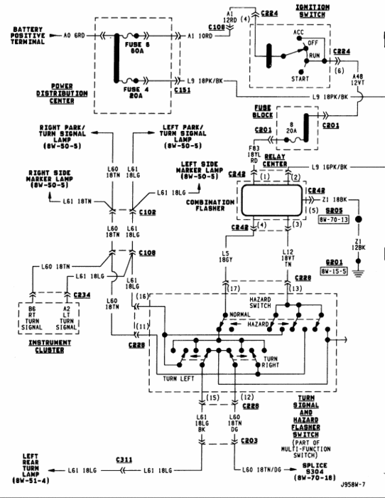
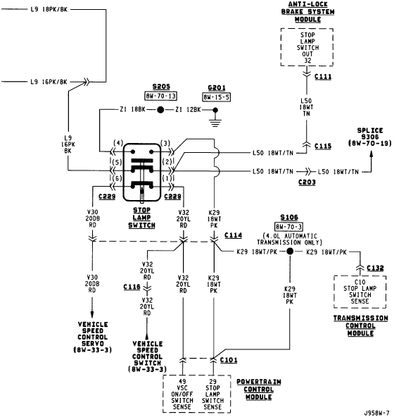
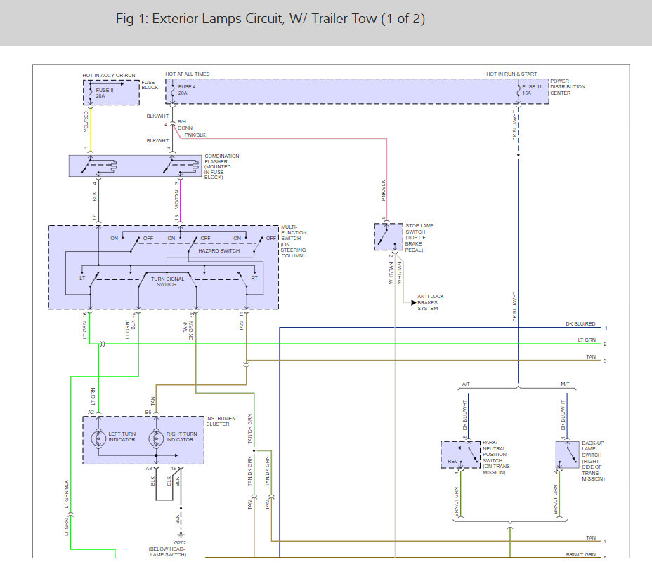
Agreeing with what I've read in the discussion, the fuse panel in the 1995 Cherokee Sport is NOT the same as indicated in the owner's manual and the Haynes repair manual. I would love to see an accurate depiction of the TRUE fuse and relay panels in this vehicle and learn unequivocally whether the turn signal has its own dedicated relay or is indeed combined inside the flasher relay. And what about the other fuse box that is located under the hood? Any suspects in there?
Please advise what to do next to restore turn signal function!
Sincere thanks,
Chris Rockett
Saturday, December 11th, 2010 AT 10:20 PM






