Sunday, March 29th, 2015 AT 12:05 PM
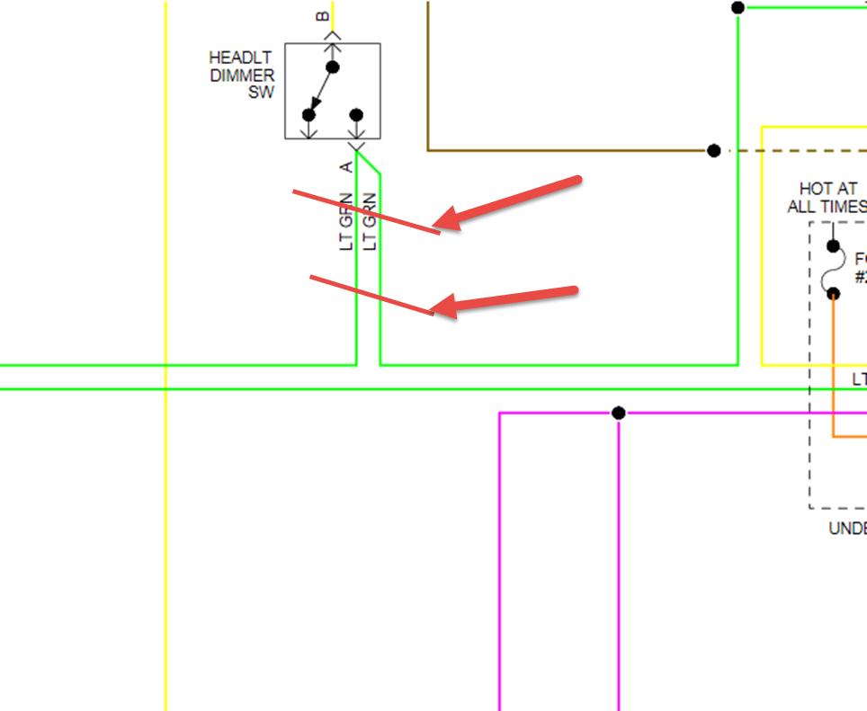
My headlights (high Beams0 and Low beams all on all the time at the Same Time. I do not have a dimmer switch or it is Broke (Not Sure) there is a switch on the left side ot he dash by the Headlight switch. I believe it is the Highbeams Swith but not sure. It is not working as the Highbeams are on all the time. I have side by side headlights and I am unsure which are the highbeams and How to make one set go out. I was wondering if anyone could give me guidance on this issue. I just got the car and am trying to get it ready for inspection and it wont pass with High beams and Low Beams on all at once? How to fix this issue or Wire to a new toggle switch. To pass inspection? Thanks justin



