Thursday, February 18th, 2021 AT 9:57 PM
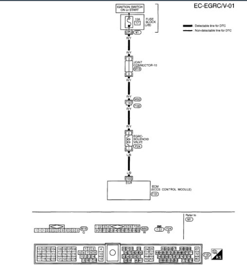
While driving around 45 MPH my car turned off and have started back since. Motor turns over but won’t start it forever stalled around certain speeds. Plugging it up to scanner and received manufacturer code P1400 after doing some research code P1400 comes back to the EGR solenoid valve and actual EGR valve itself. I purchased a brand new egrc valve that I will be installing tomorrow but my question is, will the EGR valve cause car to cut off while driving and not start back?














