Monday, January 30th, 2017 AT 5:34 AM
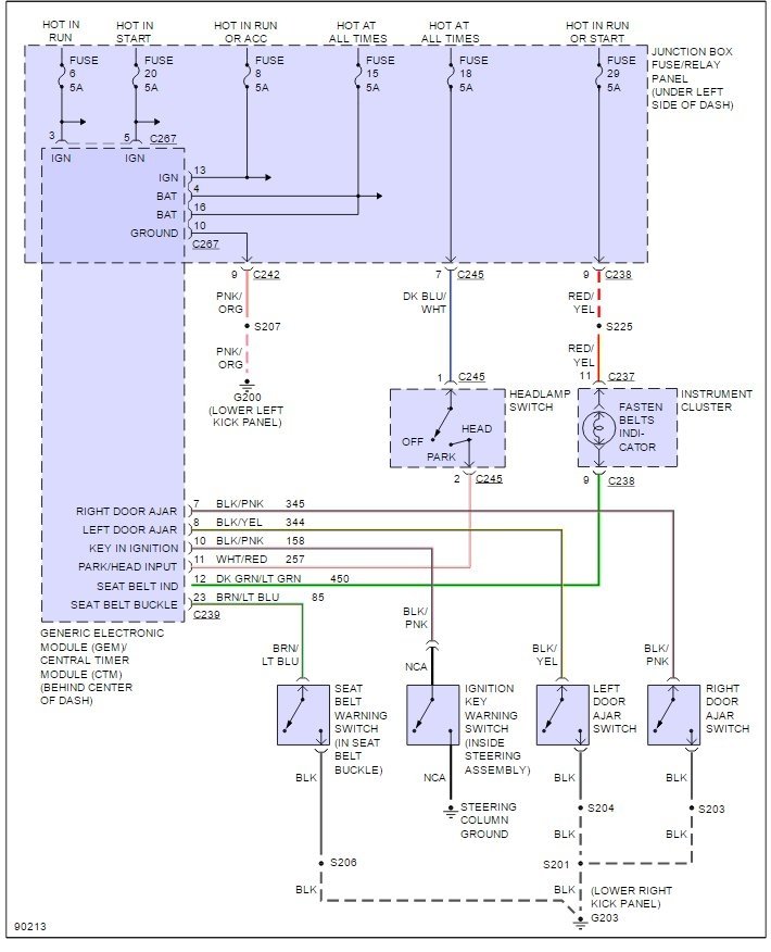
I bought this truck from a friend for a decent price and knew there would be minor problems. Somehow the ignition on the column always sounds the alarm that a key is in there or not every time the door is open. And since they have it wired through a couple different fuses that are crucial to safe operation I cannot just pull a fuse. I tried looking for the thing to just cut the wire, but it is hid pretty well. Any ideas on how to shut this thing off?

