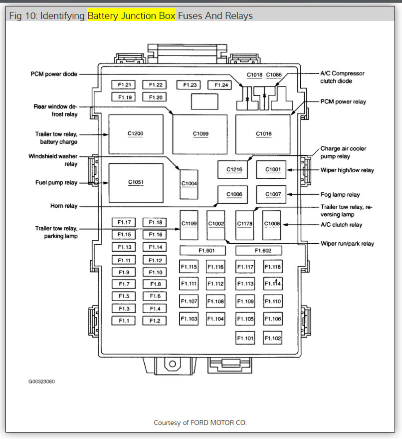
Sunday, February 18th, 2018 AT 9:28 PM
I was installing an LED light bar today when I accidentally touched the positive terminal on the battery while the wrench was on the ground screw. Now my gauge cluster is showing the e-brake light thesis light and the maintenance now light and the check engine light are on and the truck is running like it is missing.













