Sunday, February 26th, 2023 AT 4:42 AM
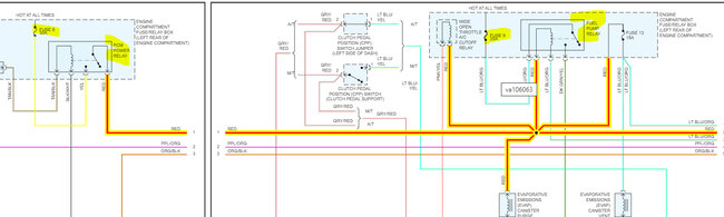
I have replaced every harness except one in the floor of cab on the truck listed above. I have no power to fuel pump whatsoever and truck has good ground touch anywhere on frame with test light it lights up. Sometimes get power to pump at 5-9 volts or nothing. I have bypassed inertia switch same thing new pump same thing ran wires through a relay to pump and ignition same thing no power. If go directly to pump from battery pump works but still won’t start. Also, the relay in fuse box under hood for the pump has two hot wires constantly? And no ground shows when test for ground the thick blue/orange is hot and thick red wire is hot constantly? Did nothing but plug n play all new used harnesses no splices. So, if have any suggestions I’m open and listening Thanks Is it possible that the computer is partially out or not getting proper signal?

