Monday, January 11th, 2021 AT 4:21 PM
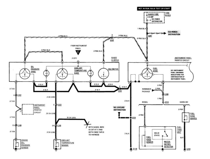
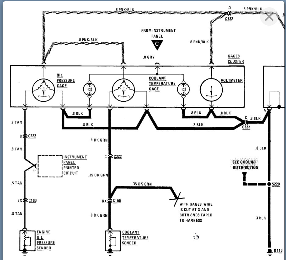
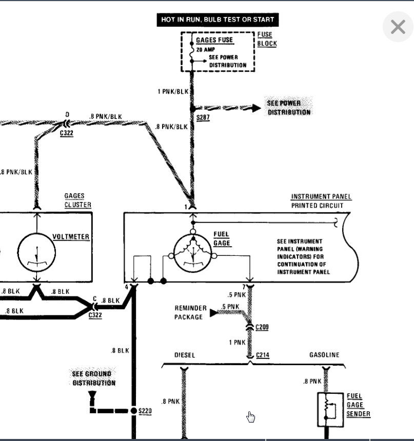
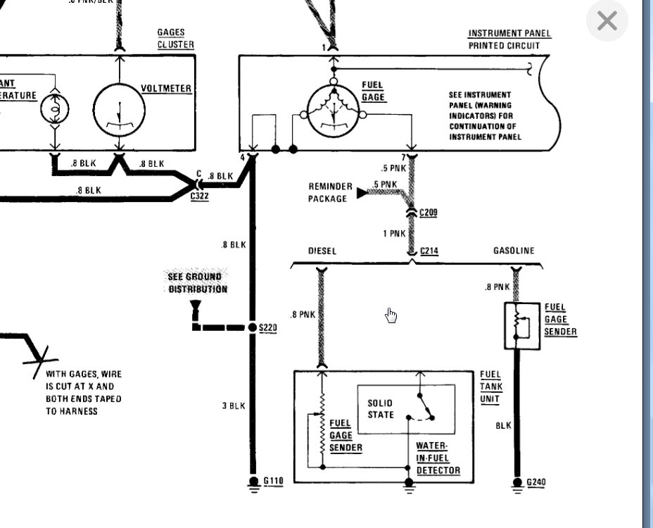
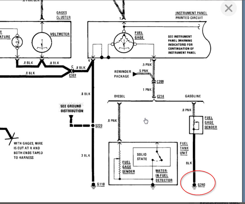
Fuel gauge stopped working, fuel sending unit replaced. Gauge replaced still not working. It is a 3 stud gauge. Pulled out cluster did not have a meter so I checked with a test light. Looking at dash post on left was hot key on bottom was ground right post hole nothing. Was told left is gauge right is 12 volt bottom is ground. Any help?







