Friday, June 29th, 2018 AT 9:26 PM
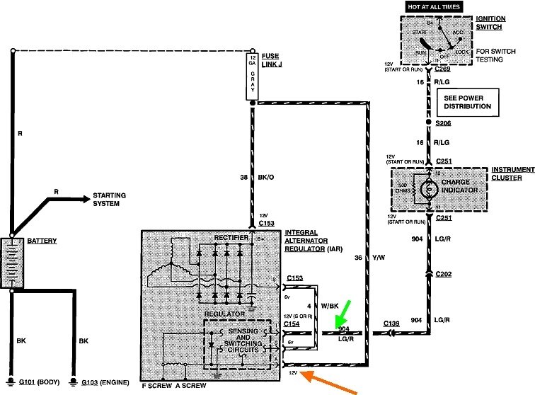
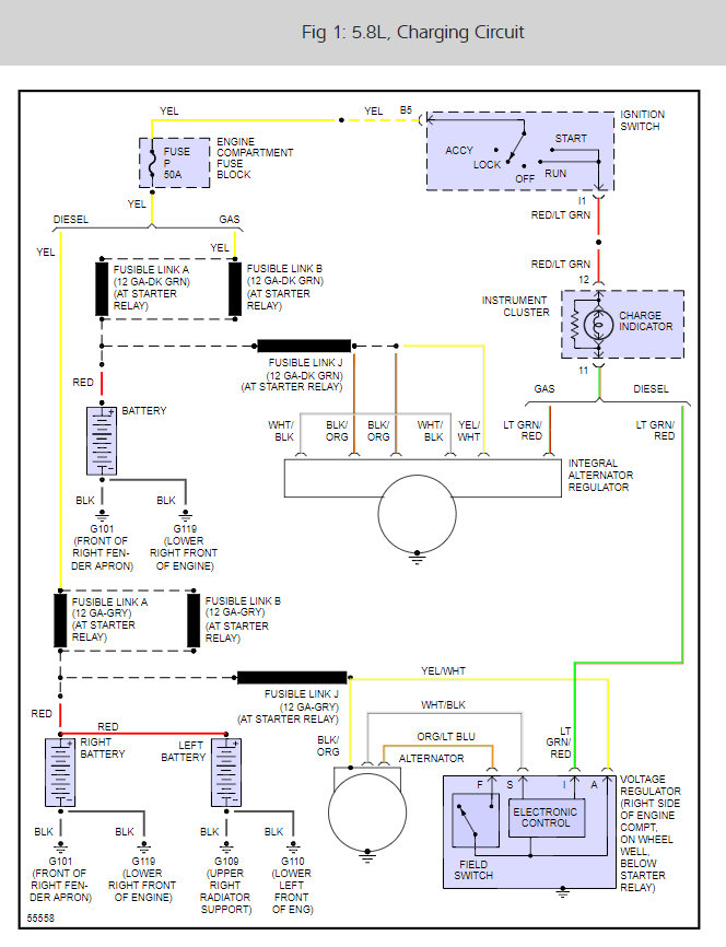
While running I have a good charge, if I turn on my AC or heater the voltage drops to around 9 volts. If I push up/down on windows while they are up/down the voltages drops real low and bounces around. Sometimes when I come to a light it will drop to about 10 volts. Both battery and alternator test good.







